西今宿貸家

8.5万円 管理/共益費 -

兵庫県姫路市西今宿6丁目

姫新線「播磨高岡」駅徒歩13分

姫新線「余部」駅徒歩34分

山陽電鉄本線「手柄」駅徒歩57分

価格
8.5万円 管理/共益費 -
間取り/面積
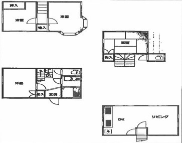
4LDK/90.72㎡
所在地
兵庫県姫路市西今宿6丁目
築年
1992年9月(築33年)
駐車
交通

姫新線播磨高岡」駅 徒歩13分

姫新線余部」駅 徒歩34分

山陽電鉄本線手柄」駅 徒歩57分

西今宿貸家の基本情報

物件名
西今宿貸家
価格
8.5万円
管理/共益費
-
築年月
1992年9月(築33年)
総戸数
-
所在地
兵庫県姫路市西今宿6丁目
交通

姫新線播磨高岡」駅 徒歩13分

姫新線余部」駅 徒歩34分

山陽電鉄本線手柄」駅 徒歩57分

西今宿貸家の詳細情報

設備条件
設備(その他)
    -
駐車場/月額
有/0円
用途地域
-
戸数
- / -
取引態様
仲介

西今宿貸家で募集中の物件

  1. 1-2階

    27.44坪 (90.72㎡)

    8.5万円(3097.67円/坪)

周辺施設

  • セブンイレブン 姫路西今宿3丁目店の画像

    コンビニエンスストア

    セブンイレブン 姫路西今宿3丁目店

    831m(11分)

近隣の物件

  1. 姫路市土山7丁目

    1R (40.10㎡)

    5.7万円

  2. 姫路市土山3丁目

    1K (29.32㎡)

    5.8万円

  3. 姫路市土山7丁目

    1DK (33.50㎡)

    4万円

  4. 姫路市土山3丁目

    1LDK (38.23㎡)

    4.5万円

よく見られている物件

  1. 姫路市東延末2丁目

    3LDK (63.00㎡)

    4万円

  2. 姫路市城北新町2丁目

    3DK (44.70㎡)

    3.5万円

  3. 姫路市飾磨区今在家2丁目

    4DK (74.72㎡)

    6万円

  4. 姫路市土山6丁目

    2LDK (58.32㎡)

    5.7万円

西今宿貸家

お気軽にお問い合わせください

無料お問い合わせ

株式会社GranHomes 姫路店

0792873030

09:00~19:00

(休:年中無休(年末年始))

GranHomes姫路店はエリアトップクラスの物件情報数

姫路市の賃貸は姫路最大級の物件数、お客様の声のGranHomes姫路店にご来店ください。